Eladó Tégla lakás Budapest IV. kerület
Budapest IV. kerület, Újpest-Központ, Munkásotthon utca
63.500.000 Ft
(165.051 €)
Az ingatlan részletei
- Ajánlat: Eladó
- Tipus: Tégla lakás
- Ár: 63.500.000 Ft
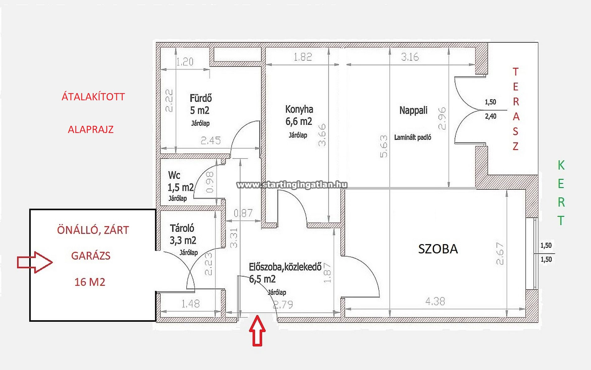
- Alapterület: 45 m2
- Emelet: Földszint
- Szobák: 1 szoba, 1 félszoba
- Épület szintjei: 5 szintes
- Kertkapcsolat: igen
- Kilátás: Udvari
- Állapot: Közepes állapotú
- Fűtés: Cirkó
- Komfort: Összkomfort
- Parkolás: Garázs külön kapható
Leírás
Azonosító: E-IV-16-681
Budapest IV. kerületében, Újpest szívében, a Munkásotthon utca csendes, zöld részén eladó egy 2001-ben épült, téglaépítésű társasház földszintjén található, 45 m²-es, kertkapcsolatos, teraszos lakás, amelyhez saját, zárható garázs is tartozik, amely közvetlenül a lakásból közelíthető meg! Eredetileg 1 szobás elrendezésű a lakás, de kis ráfordítással amerikai konyhás nappali és külön hálószoba alakítható ki belőle. A konyha és a szoba közötti fal bontható, az áthidaló már elő van készítve.
Az otthon átlagos állapotú, egyedi cirkófűtésű, légkondicionált, és minden részletében kényelmet és praktikumot kínál. A konyha teljesen berendezett – sütővel, főzőlappal és konyhabútorral felszerelt –, a fürdőszoba és a WC külön helyiségben található.
A lakás nappalijából közvetlen kijárat nyílik a teraszra és a kertre, ahol kellemesen ki lehet ülni kávézni, pihenni, vagy akár dolgozni is a friss levegőn. A 6 m²-es terasz a zöld növényekkel körülölelt kerttel együtt igazán otthonos, nyugodt hangulatot teremt.
A lakásból belülről nyíló, saját garázs igazi különlegesség – kényelmes és biztonságos megoldás, főként a téli hónapokban. A garázs +10.000.000 Ft-os áron opcionálisan megvásárolható.
Az ingatlant korábban irodaként használták, így akár vállalkozás céljára is ideális lehet, de könnyedén visszaalakítható barátságos, otthonos lakássá. Az irodabútorok igény esetén megvásárolhatók, vagy a tulajdonos elszállítja őket. A lakásban távfelügyeletre bekötött riasztórendszer is működik, a ház öt emeletes, a környék rendezett, biztonságos és metróközeli – az M3-as metró Újpest-központ megállója mindössze pár perc séta, így a belváros is gyorsan elérhető.
Ez a lakás igazi ritkaság: kertkapcsolatos otthon garázzsal, a város szívében, mégis csendes környezetben – azonnal költözhető.
Azon kedves ügyfelek, akik általunk találják meg leendő otthonukat, az ügyvédünk által szerkesztett adásvételi szerződés díjából kedvezményben részesülnek.
Eladná ingatlanát? Bízza ránk!
Nálunk az értékesítés átlátható, egyszerű és biztonságos folyamat. A vételt és az eladást egy kézben tartjuk - így Önnek csak a sikeres üzletet kell ünnepelnie.
Hívjon minket még ma, és ingyenesen felmérjük ingatlana piaci értékét!
Miért válasszon minket?
- - Gyors értékesítés
- - Széles vevőkör
- - Tapasztalt értékesítők
- - Modern, kiemelt online megjelenés
- - Rugalmas jutalék
- - Teljes körű ügyintézés az első lépéstől a birtokbaadásig
Hívjon most, vagy Írjon üzenetet még ma, és indítsuk el az értékesítést! Hívjon most, vagy Írjon üzenetet még ma, és indítsuk el az értékesítést! Mobil: +36-20-448-6350
További ajánlataim: startingingatlan.hu/ertekesitoink/112
Üzenet a hirdetőnek
Ingatlan hírek és információk ELSŐ KÉZBŐL
Iratkozzon fel hírlevelünkre még ma, és mi havonta egyszer elküldjük Önnek a legfontosabb piaci változásokat, ingatlan trendeket és vásárlási tanácsokat, tippeket!















