Eladó Tégla lakás Budapest VIII. kerület
Budapest VIII. kerület, Józsefváros (Nagykörúton kívül), Szilágyi utca
87.100.000 Ft
(226.393 €)
Az ingatlan részletei
- Ajánlat: Eladó
- Tipus: Tégla lakás
- Ár: 87.100.000 Ft
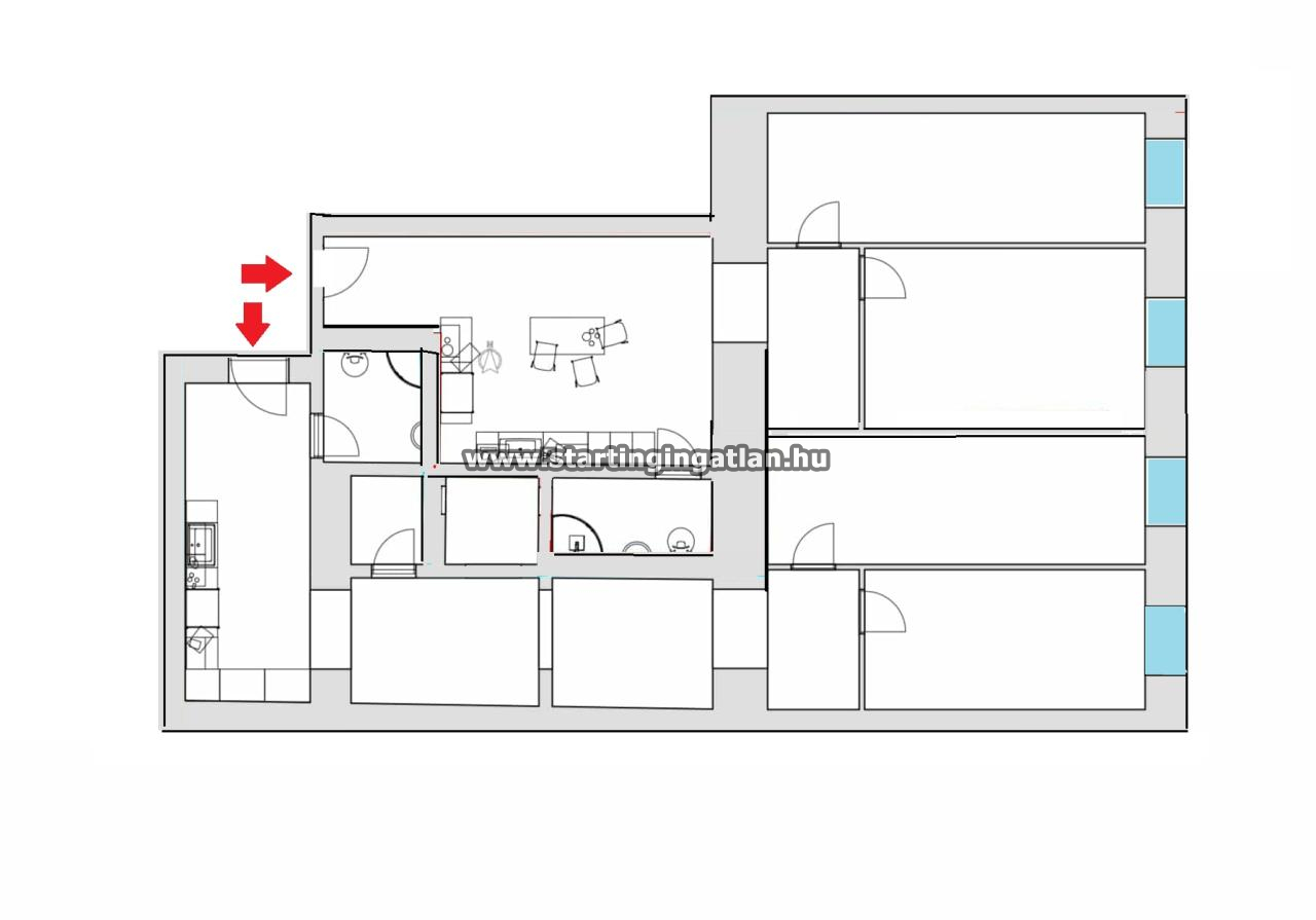
- Alapterület: 94 m2
- Emelet: Földszint
- Szobák: 3 szoba, 1 félszoba
- Épület szintjei: 3 szintes
- Kilátás: Utcai
- Állapot: Közepes állapotú
- Fűtés: Cirkó
- Komfort: Összkomfort
- Parkolás: Utcán, közterületen
Leírás
Azonosító:E-VIII-35-447
Eladóvá vált a VIII. kerületben, a Szilágyi utcában egy 94 m²-es, földszinti, 4,35 méteres belmagasságú lakás, egy szépen felújított háromemeletes társasházban, a II. János Pál pápa tér közvetlen közelében. Az ingatlan tágas előszobával, két nagy, világos szobával, egy hálófülkével, konyhával, fürdőszobával, külön WC-vel és két állógalériával rendelkezik, amelyek a belmagasságnak köszönhetően valódi, használható tereket adnak. A polgári jellegű, napfényes helyiségek otthonos hangulatot teremtenek, a fürdő feletti galéria akár infraszauna kialakítására is alkalmas. A fűtést gázcirkó biztosítja, a villanyvezetékek cseréje megtörtént, az ingatlan pedig tehermentes és gyorsan költözhető.
A lakás egyedülálló elrendezése lehetővé teszi akár két külön bejáratú lakás kialakítását is, így befektetők számára kiemelten vonzó lehetőség, de mérete és praktikus kialakítása miatt nagyobb családoknak, illetve rendelő vagy iroda létrehozására is tökéletes választás. A környék infrastruktúrája elsőrangú: metró, busz és villamos megállók, sportolási lehetőségek és bevásárlóhelyek mind néhány perc alatt elérhetők. A frissen megújult, zöld II. János Pál pápa tér pedig igazi városi oázis, ahol a sportolástól a pihenésig minden adott. Ez az ingatlan különleges lehetőség azok számára, akik egy tágas, jól alakítható és értékálló otthont keresnek Budapest szívében.
Azon kedves ügyfelek, akik általunk találják meg leendő otthonukat, az ügyvédünk által szerkesztett adásvételi szerződés díjából kedvezményben részesülnek.
Eladná ingatlanát? Bízza ránk!
Nálunk az értékesítés átlátható, egyszerű és biztonságos folyamat. A vételt és az eladást egy kézben tartjuk - így Önnek csak a sikeres üzletet kell ünnepelnie.
Hívjon minket még ma, és ingyenesen felmérjük ingatlana piaci értékét!
Miért válasszon minket?
- - Gyors értékesítés
- - Széles vevőkör
- - Tapasztalt értékesítők
- - Modern, kiemelt online megjelenés
- - Rugalmas jutalék
- - Teljes körű ügyintézés az első lépéstől a birtokbaadásig
Hívjon most, vagy Írjon üzenetet még ma, és indítsuk el az értékesítést! Hívjon most, vagy Írjon üzenetet még ma, és indítsuk el az értékesítést! Mobil: +36-20-852-8399
További ajánlataim: startingingatlan.hu/ertekesitoink/265
Üzenet a hirdetőnek
Ingatlan hírek és információk ELSŐ KÉZBŐL
Iratkozzon fel hírlevelünkre még ma, és mi havonta egyszer elküldjük Önnek a legfontosabb piaci változásokat, ingatlan trendeket és vásárlási tanácsokat, tippeket!













