Eladó Panel lakás Budapest XIII. kerület
Budapest XIII. kerület, Angyalföld, Üteg utca
78.000.000 Ft
(205.301 €)
Az ingatlan részletei
- Ajánlat: Eladó
- Tipus: Panel lakás
- Ár: 78.000.000 Ft
- Alapterület: 58 m2
- Emelet: 2. emelet
- Szobák: 1 szoba, 2 félszoba
- Épület szintjei: 10 szintes, lift van
- Erkély: van, 3 m2
- Kilátás: Udvari
- Állapot: Közepes állapotú
- Fűtés: Távfűtés
- Komfort: Összkomfort
- Parkolás: Utcán, közterületen
Leírás
Azonosító: E-XIII-33-108
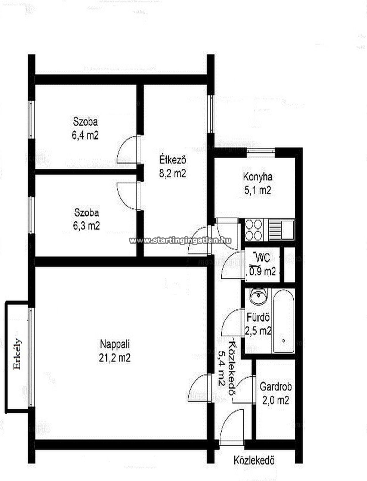
Eladó Budapesten a XIII. kerületbe az Üteg utca zöldövezeti részén, mégis kiváló infrastruktúrával rendelkező környezetben egy második emeleti, 58 nm 1+2 szobás csendes és napfényes panel lakást. Az ingatlan közepes állapotú, jól karbantartott, elrendezése kifejezetten élhető, pároknak és kis családnak egyaránt ideális, ugyanakkor kiválóan átalakítható, így az új tulajdonos saját igényeire szabhatja.
A nyugati tájolású, klímával felszerelt nagyszoba 20,8 nm-es, egész délután benapozott, kellemes hangulatú tér, amely tökéletes helyszíne lehet a pihenésnek vagy a közös családi időtöltésnek. A lakás része egy 8 nm-es étkező, amelyből két külön nyíló, egyenként 6,3 nm-es félszoba érhető el, így a tér elosztása praktikus és jól variálható. A világos konyha a sétányra és a fákra néz, igazi zöld panorámát nyújt, a fürdőszoba és a WC külön helyiségben található. Az erkély 3 nm-es, ideális egy reggeli kávéhoz vagy esti kikapcsolódáshoz. A villany vezetékek cseréje megtörtént . A lakás távfűtéses, a ház tízszintes, lifttel felszerelt, a lakóközösség rendezett, kulturált és kifejezetten barátságos.
A környék nyugodt és biztonságos, mégis minden pár perc sétával elérhető: óvoda és bölcsőde szinte a ház mellett, iskolák két percre, a sétány pedig a kerület egyik legjobb része, ahol játszóterek, edzőpark, labdapálya, kutyafuttató, közösségi kert, könyvszekrény, valamint Lidl, Spar, Rossmann és számos üzlet, cukrászda található. Egészségház, gyermekorvos, védőnő, kórház, polgármesteri hivatal és kormányablak szintén néhány perc séta.
A közlekedés kiváló, a belváros gyorsan és könnyen elérhető. Ez az ingatlan ideális választás azok számára, akik egy csendes, napos, jól élhető otthont keresnek zöld környezetben, kompromisszumok nélkül, ahol minden fontos szolgáltatás valóban karnyújtásnyira van. Ha felkeltettem érdeklödését hívjon bizalommal.
Azon kedves ügyfelek, akik általunk találják meg leendő otthonukat, az ügyvédünk által szerkesztett adásvételi szerződés díjából kedvezményben részesülnek.
Eladná ingatlanát? Bízza ránk!
Nálunk az értékesítés átlátható, egyszerű és biztonságos folyamat. A vételt és az eladást egy kézben tartjuk - így Önnek csak a sikeres üzletet kell ünnepelnie.
Hívjon minket még ma, és ingyenesen felmérjük ingatlana piaci értékét!
Miért válasszon minket?
- - Gyors értékesítés
- - Széles vevőkör
- - Tapasztalt értékesítők
- - Modern, kiemelt online megjelenés
- - Rugalmas jutalék
- - Teljes körű ügyintézés az első lépéstől a birtokbaadásig
Hívjon most, vagy Írjon üzenetet még ma, és indítsuk el az értékesítést! Hívjon most, vagy Írjon üzenetet még ma, és indítsuk el az értékesítést! Mobil: +36-20-852-8397
További ajánlataim: startingingatlan.hu/ertekesitoink/304
Üzenet a hirdetőnek
Ingatlan hírek és információk ELSŐ KÉZBŐL
Iratkozzon fel hírlevelünkre még ma, és mi havonta egyszer elküldjük Önnek a legfontosabb piaci változásokat, ingatlan trendeket és vásárlási tanácsokat, tippeket!
